Takaisin

 

127: Tehokas tilaihme taipuu moneksi

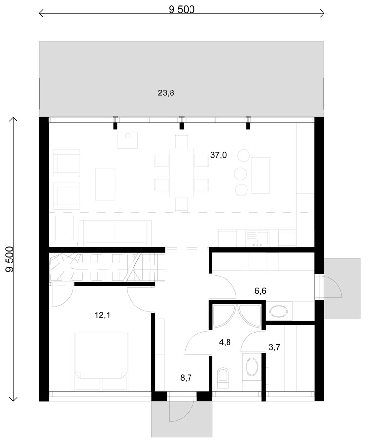
Talomalli 127 m²


Kerrosalat:
1. krs 90,0 m²
2. krs 56,5 m²


Huoneistoalat:
1. krs 79,5 m²
2. krs 47,5 m²

Pohjakuva 1.krs


Pohjakuva 2.krs


Julkisivukuvat



Vuoreksen Kuutiot - www.vuoreksenkuutiot.fi © . Kaikki oikeudet pidätetään.